Monolocale in vendita

Ravenna, Via M. Cavallazzi - Porto Fuori
€ 99.000
1 locale 1 locale
40 Mq 40 Mq
1 bagno 1 bagno

Monolocale in vendita

Ravenna, Via M. Cavallazzi - Porto Fuori

Descrizione annuncio

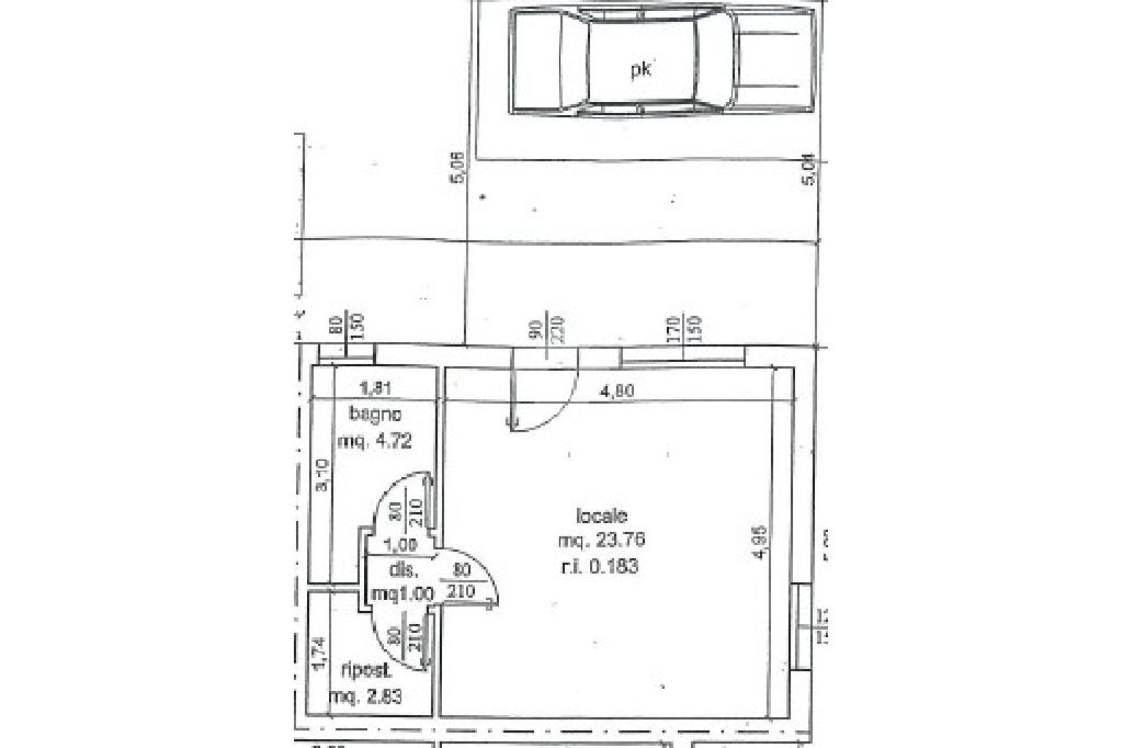
PORTO FUORI: Proponiamo in vendita grazioso monolocale, in contesto plurifamiliare senza spese condominiali, con posto auto ad uso esclusivo.

La soluzione è composta da soggiornocamera di circa 24mq, bagno finestrato con box doccia e comodo ripostiglio utilizzabile anche come dispensa.

Ideale anche per chi cerca una soluzione come investimento, ma anche perfetto per chi desidera vivere in un contesto tranquillo e ben collegato.

CHIAMA PER FISSARE UN APPUNTAMENTO AL: 0544 1800813.

Mostra tutto

Nelle vicinanze

Trasporto pubblico Trasporto pubblico
Trasporto pubblico
2,3 Km
Ricariche auto elettriche Ricariche auto elettriche
Distributore TAP
2,0 Km
Scuole Scuole
Scuola elementare Bruno Pasini
2,4 Km
Scuola media Mario Montanari
2,6 Km
I.P.S.I.A. Callegari
2,6 Km
Farmacia Farmacia
Farmacia Comunale N 4
2,5 Km
Supermercati Supermercati
Coop&Coop Ravenna Teodora
2,2 Km
Famila
2,5 Km
In's
2,7 Km
Negozi Negozi
Fornaio
2,9 Km
Bar Bar
Bar
800 m
Tribeca
2,9 Km
Ristoranti Ristoranti
Barbè
560 m
Ristoranti
810 m
Radicchio Rosso
1,7 Km
Essenziale Bistrot
2,4 Km
Hostaria
2,4 Km
Mostra tutto

Caratteristiche

Rif.:
61086850
Piano:
Terra di 2
Totale piani:
2
Posti auto:
1
Camere da letto:
1
Arredamento:
Parziale
Mostra tutto
Prezzo Prezzo
€ 99.000
Rata mutuo Rata mutuo
€ 467 / mese
Spese annue Spese annue
€ 0
Proponi il tuo prezzoProponi il tuo prezzo

Classe Energetica

Questo immobile è esente da classe energetica
Anno di costruzione:
2006
Riscaldamento:
Autonomo
Tipo impianto:
A radiatori
Tipo alimentazione:
Metano

Ti interessa visionare l'immobile?

Fissa un appuntamento  Fissa un appuntamento

Richiedi informazioni

Clicca su Leggi per aprire l'informativa
* Questi campi sono obbligatori

Calcola il tuo mutuo

Semplice e senza impegno
Anticipo

( % )
Mutuo

( % )

pochi semplici passi

inserisci i tuoi dati
Questionario completato
Grazie per aver richiesto un appuntamento senza impegno con un nostro Consulente del Credito e Assicurativo.

Hai inserito correttamente tutti i dati necessari e a breve riceverai una e-mail con un link da convalidare per inviare i tuoi dati.
Affiliato
Studio Ponte Nuovo Srl
Via Del Pino, 1 48100 Ravenna (RA)

Il nostro staff


  • Lorenzo Pretolani
    Affiliato
Via Del Pino, 1 48100 Ravenna (RA)
Zona: Ponte Nuovo-Classe-Porto Fuori-Madonna dell'Albero-Fosso Ghiaia
Mostra su mappa
Orari: Da lun a ven: 9.00-13.00 e 15:00-19:30. Sab: 9:00-13:00 e 15:00-18:30. Domenica chiuso.
Affiliato
Studio Ponte Nuovo Srl
Via Del Pino, 1 48100 Ravenna (RA)

2026 Tecnocasa Franchising S.p.A. - P. IVA 08365160152 - Via Monte Bianco 60/A 20089 Rozzano (MI). Ogni agenzia ha un proprio titolare ed è autonoma. Privacy policy | Policy utilizzo | Cookie policy