Casa indipendente in vendita

Ravenna, Via Lunga - Santo Stefano
€ 300.000
22 locali 22 locali
419 Mq 419 Mq
3 bagni 3 bagni

Casa indipendente in vendita

Ravenna, Via Lunga - Santo Stefano

Descrizione annuncio

Osteria: Proponiamo in vendita casa singola completamente indipendente, immersa nella tranquillità e isolata dal centro abitato, ideale per chi cerca privacy, spazio e personalizzazione.

La proprietà è raggiungibile tramite strada privata e si presenta con un suggestivo viale d’ingresso, parte integrante dell’ampio spazio esterno che circonda l’abitazione.

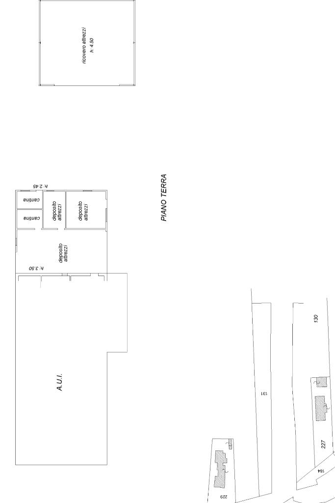
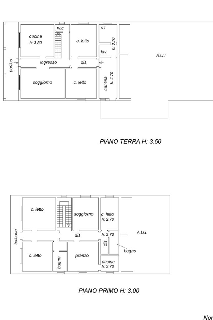
L’immobile si sviluppa in tre unità abitative, soluzione perfetta per più nuclei familiari, per una residenza con dependance o per un intervento a reddito: due unità accorpate catastalmente e una terza unità con catasto indipendente, edificata nel 2001.

Completano la proprietà un grande box auto, cantine e numerosi locali accessori ad uso deposito, spazi versatili ideali anche dopo un intervento di ristrutturazione.

Gli appartamenti dispongono di ampie metrature, diverse camere e più bagni, offrendo un’eccellente base per una ristrutturazione capace di valorizzare al massimo gli ambienti e adattarli alle esigenze moderne.

Soluzione di grande fascino e potenziale, perfetta per chi desidera creare una residenza su misura in un contesto riservato e unico.

CHIAMA E FISSA APPUNTAMENTO AL. 05441800813.

Mostra tutto

Nelle vicinanze

Bar Bar
Ca' del Liscio
2,9 Km
Mostra tutto

Caratteristiche

Rif.:
61160761
Piano:
2 di 2 (Piano su più livelli)
Box:
1
Posti auto:
1
Balconi:
1
Camere da letto:
8
Mostra tutto
Prezzo Prezzo
€ 300.000
Rata mutuo Rata mutuo
€ 1.414 / mese
Spese annue Spese annue
€ 0
Proponi il tuo prezzoProponi il tuo prezzo

Classe Energetica

Questo immobile è esente da classe energetica
Anno di costruzione:
1969
Riscaldamento:
Autonomo
Tipo impianto:
A radiatori
Tipo alimentazione:
Metano

Ti interessa visionare l'immobile?

Fissa un appuntamento  Fissa un appuntamento

Richiedi informazioni

Clicca su Leggi per aprire l'informativa
* Questi campi sono obbligatori

Calcola il tuo mutuo

Semplice e senza impegno
Anticipo

( % )
Mutuo

( % )

pochi semplici passi

inserisci i tuoi dati
Questionario completato
Grazie per aver richiesto un appuntamento senza impegno con un nostro Consulente del Credito e Assicurativo.

Hai inserito correttamente tutti i dati necessari e a breve riceverai una e-mail con un link da convalidare per inviare i tuoi dati.
Affiliato
Studio Ponte Nuovo Srl
Via Del Pino, 1 48100 Ravenna (RA)

Il nostro staff


  • Lorenzo Pretolani
    Affiliato
Via Del Pino, 1 48100 Ravenna (RA)
Zona: Ponte Nuovo-Classe-Porto Fuori-Madonna dell'Albero-Fosso Ghiaia
Mostra su mappa
Orari: Da lun a ven: 9.00-13.00 e 15:00-19:30. Sab: 9:00-13:00 e 15:00-18:30. Domenica chiuso.
Affiliato
Studio Ponte Nuovo Srl
Via Del Pino, 1 48100 Ravenna (RA)

2026 Tecnocasa Franchising S.p.A. - P. IVA 08365160152 - Via Monte Bianco 60/A 20089 Rozzano (MI). Ogni agenzia ha un proprio titolare ed è autonoma. Privacy policy | Policy utilizzo | Cookie policy