Rustico in vendita

Ravenna, Via Formella - Santo Stefano
€ 178.000
8 locali 8 locali
289 Mq 289 Mq
3 bagni 3 bagni

Rustico in vendita

Ravenna, Via Formella - Santo Stefano

Descrizione annuncio

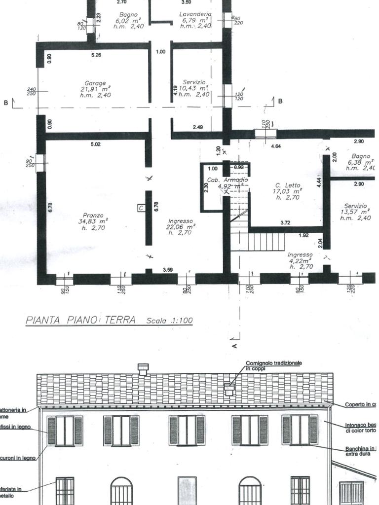
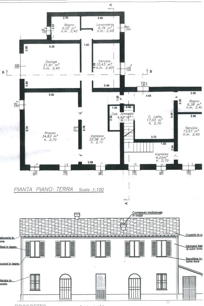
SANTO STEFANO: Nel cuore della tranquilla località di Santo Stefano, nel comune di Ravenna, è in vendita un affascinante rustico di 289 mq che rappresenta un’eccellente opportunità per chi desidera una casa da completare secondo i propri gusti e necessità.

L’immobile si presenta come un rustico parzialmente ristrutturato, dove sono già stati eseguiti importanti interventi strutturali: realizzato l’adeguamento antisismico, completati tutti gli impianti dei servizi e sostituite le travi non conformi alle normative, garantendo così una solida base per proseguire i lavori di finitura in totale sicurezza.

Distribuito su ampi spazi, il rustico comprende otto locali, tra cui tre camere da letto e cinque ulteriori stanze versatili. Sono presenti tre bagni, a conferma della funzionalità e del comfort che la proprietà può offrire.

La posizione strategica permette di vivere immersi nel verde e nella pace della natura, restando però a breve distanza dai principali servizi e dalle attrazioni di Ravenna.

CHIAMA E FISSA APPUNTAMENTO AL 05441800813

Mostra tutto

Nelle vicinanze

Scuole Scuole
Romolo Gessi
1,5 Km
Farmacia Farmacia
Farmacia
1,8 Km
Supermercati Supermercati
Conad
1,9 Km
Negozi Negozi
Forno
2,0 Km
Alimentari Batani
2,3 Km
Bar Bar
Da Fabio
1,9 Km
Ristoranti Ristoranti
Bar Ristorante Jack
1,8 Km
La piazzetta
1,9 Km
SALOON RISTOPUB
2,3 Km
Mostra tutto

Caratteristiche

Rif.:
61176258
Piano:
Medio di 1
Totale piani:
1
Box:
1
Camere da letto:
3
Arredamento:
Assente
Mostra tutto
Prezzo Prezzo
€ 178.000
Rata mutuo Rata mutuo
€ 839 / mese
Spese annue Spese annue
€ 0
Proponi il tuo prezzoProponi il tuo prezzo

Altre caratteristiche

Classe Energetica

Questo immobile è esente da classe energetica
Riscaldamento:
Assente

Ti interessa visionare l'immobile?

Fissa un appuntamento  Fissa un appuntamento

Richiedi informazioni

Clicca su Leggi per aprire l'informativa
* Questi campi sono obbligatori

Calcola il tuo mutuo

Semplice e senza impegno
Anticipo

( % )
Mutuo

( % )

pochi semplici passi

inserisci i tuoi dati
Questionario completato
Grazie per aver richiesto un appuntamento senza impegno con un nostro Consulente del Credito e Assicurativo.

Hai inserito correttamente tutti i dati necessari e a breve riceverai una e-mail con un link da convalidare per inviare i tuoi dati.
Affiliato
Studio Ponte Nuovo Srl
Via Del Pino, 1 48100 Ravenna (RA)

Il nostro staff


  • Lorenzo Pretolani
    Affiliato
Via Del Pino, 1 48100 Ravenna (RA)
Zona: Ponte Nuovo-Classe-Porto Fuori-Madonna dell'Albero-Fosso Ghiaia
Mostra su mappa
Orari: Da lun a ven: 9.00-13.00 e 15:00-19:30. Sab: 9:00-13:00 e 15:00-18:30. Domenica chiuso.
Affiliato
Studio Ponte Nuovo Srl
Via Del Pino, 1 48100 Ravenna (RA)

2026 Tecnocasa Franchising S.p.A. - P. IVA 08365160152 - Via Monte Bianco 60/A 20089 Rozzano (MI). Ogni agenzia ha un proprio titolare ed è autonoma. Privacy policy | Policy utilizzo | Cookie policy