Porzione di bifamiliare in vendita

Ravenna, Via Tito Abudio Vero - Classe
€ 520.000
6 locali 6 locali
199 Mq 199 Mq
3 bagni 3 bagni

Porzione di bifamiliare in vendita

Ravenna, Via Tito Abudio Vero - Classe

Descrizione annuncio

CLASSE: Proponiamo in vendita, in contesto residenziale immerso nel verde graziosa porzione di bifamiliare così composta:

Ingresso rialziato che conduce al porticato al piano primo, con accesso diretto alla zona giorno e alla cucina abitabile, con annesso balcone. Sullo stesso piano abbiamo la prima camera matrimoniale, anch'essa con balcone e primo bagno finestrato con vasca.

Il secondo piano ospita la zona notte, composta da due camere, di cui una matrimoniale con ampio terrazzo ed una singola con balcone. Presente poi un secondo bagno finestrato con vasca. Ampia soffitta , ottima come sgombraroba.

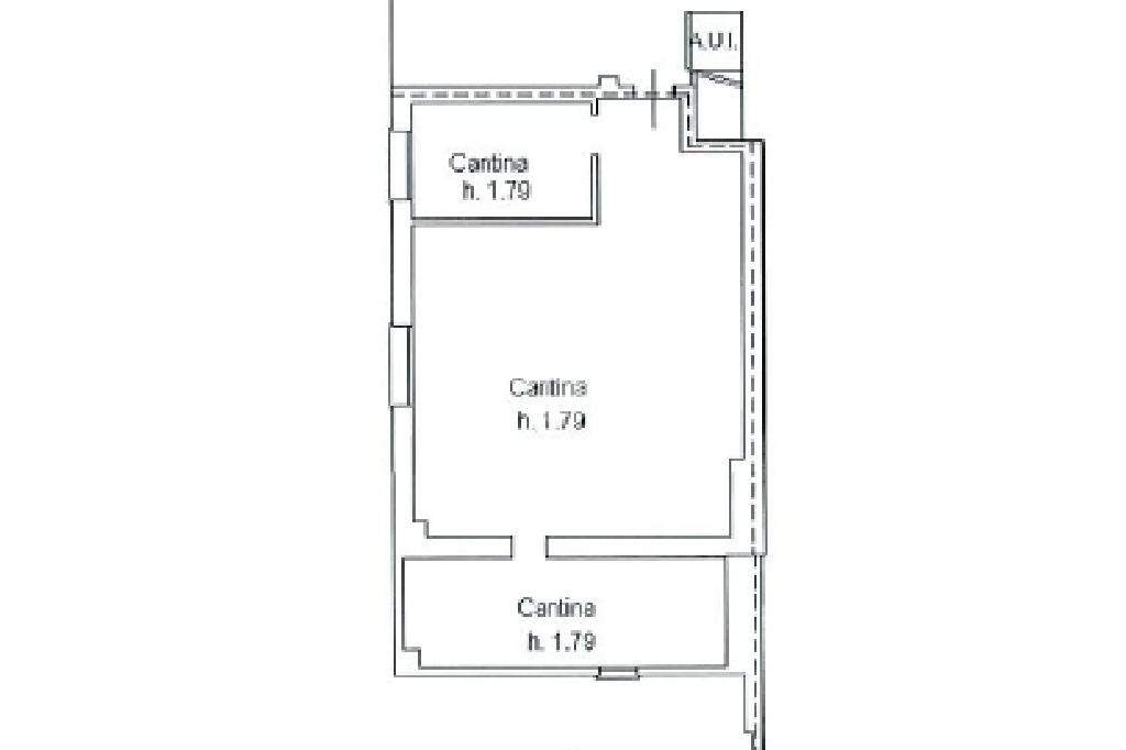
Il piano terra invece comprende servizi dalle comode metrature, a partire dalla taverna/cantina, comprensiva di ripostiglio e terzo bagno di servizio finestrato e con box doccia, garge di 28mq, dalla quale si può accedere direttamente all'interno dell'immobile.

La casa è finemente mantenuta ed immersa nel verde, in un contesto silenziono e residenziale, vicino ad un piccolo parco per bambini. Soluzione ottima per chi vuole una soluzione spaziosa e non fare lavori di ristrutturazione.

CHIAMA E FISSA APPUNTAMENTO AL: 05441800813

Mostra tutto

Nelle vicinanze

Trasporto pubblico Trasporto pubblico
Classe
Classe
870 m
Ricariche auto elettriche Ricariche auto elettriche
Eneldrive Parco Archeologico di Classe
1,5 Km
Distributore TAP
2,0 Km
Scuole Scuole
Scuole
2,8 Km
Farmacia Farmacia
Farmacia del Ponte Nuovo
2,1 Km
Supermercati Supermercati
Eurospar
1,9 Km
Lidl
1,9 Km
Conad Superstore
2,1 Km
Discount alimentare
2,5 Km
Negozi Negozi
Fornaio
2,1 Km
La Favola senza glutine
2,4 Km
Forno Pasticceria Nasta
2,7 Km
Bar Bar
Jam cafè
1,5 Km
Bar
2,3 Km
Bar Latteria I Portici
2,7 Km
Ristoranti Ristoranti
Ristorante S. Apollinare
980 m
Hostaria
2,0 Km
Radicchio Rosso
2,2 Km
Ristoranti
2,3 Km
Pizzeria
2,3 Km
Mostra tutto

Caratteristiche

Rif.:
61127160
Piano:
2 di 2 (Piano su più livelli)
Box:
1
Posti auto:
1
Balconi:
2
Terrazzi:
1
Mostra tutto
Prezzo Prezzo
€ 520.000
Rata mutuo Rata mutuo
€ 2.451 / mese
Spese annue Spese annue
€ 0
Proponi il tuo prezzoProponi il tuo prezzo

Classe Energetica

D
D
D
D
D
D
D
D
D
EP invernale del fabbricato:
EP estiva del fabbricato:
Anno di costruzione:
1990
Riscaldamento:
Autonomo
Tipo impianto:
A radiatori
Tipo alimentazione:
Metano

Ti interessa visionare l'immobile?

Fissa un appuntamento  Fissa un appuntamento

Richiedi informazioni

Clicca su Leggi per aprire l'informativa
* Questi campi sono obbligatori

Calcola il tuo mutuo

Semplice e senza impegno
Anticipo

( % )
Mutuo

( % )

pochi semplici passi

inserisci i tuoi dati
Questionario completato
Grazie per aver richiesto un appuntamento senza impegno con un nostro Consulente del Credito e Assicurativo.

Hai inserito correttamente tutti i dati necessari e a breve riceverai una e-mail con un link da convalidare per inviare i tuoi dati.
Affiliato
Studio Ponte Nuovo Srl
Via Del Pino, 1 48100 Ravenna (RA)

Il nostro staff


  • Lorenzo Pretolani
    Affiliato
Via Del Pino, 1 48100 Ravenna (RA)
Zona: Ponte Nuovo-Classe-Porto Fuori-Madonna dell'Albero-Fosso Ghiaia
Mostra su mappa
Orari: Da lun a ven: 9.00-13.00 e 15:00-19:30. Sab: 9:00-13:00 e 15:00-18:30. Domenica chiuso.
Affiliato
Studio Ponte Nuovo Srl
Via Del Pino, 1 48100 Ravenna (RA)

2026 Tecnocasa Franchising S.p.A. - P. IVA 08365160152 - Via Monte Bianco 60/A 20089 Rozzano (MI). Ogni agenzia ha un proprio titolare ed è autonoma. Privacy policy | Policy utilizzo | Cookie policy